Close
Type at least 1 character to search
Back to top

A&M – Maison passive

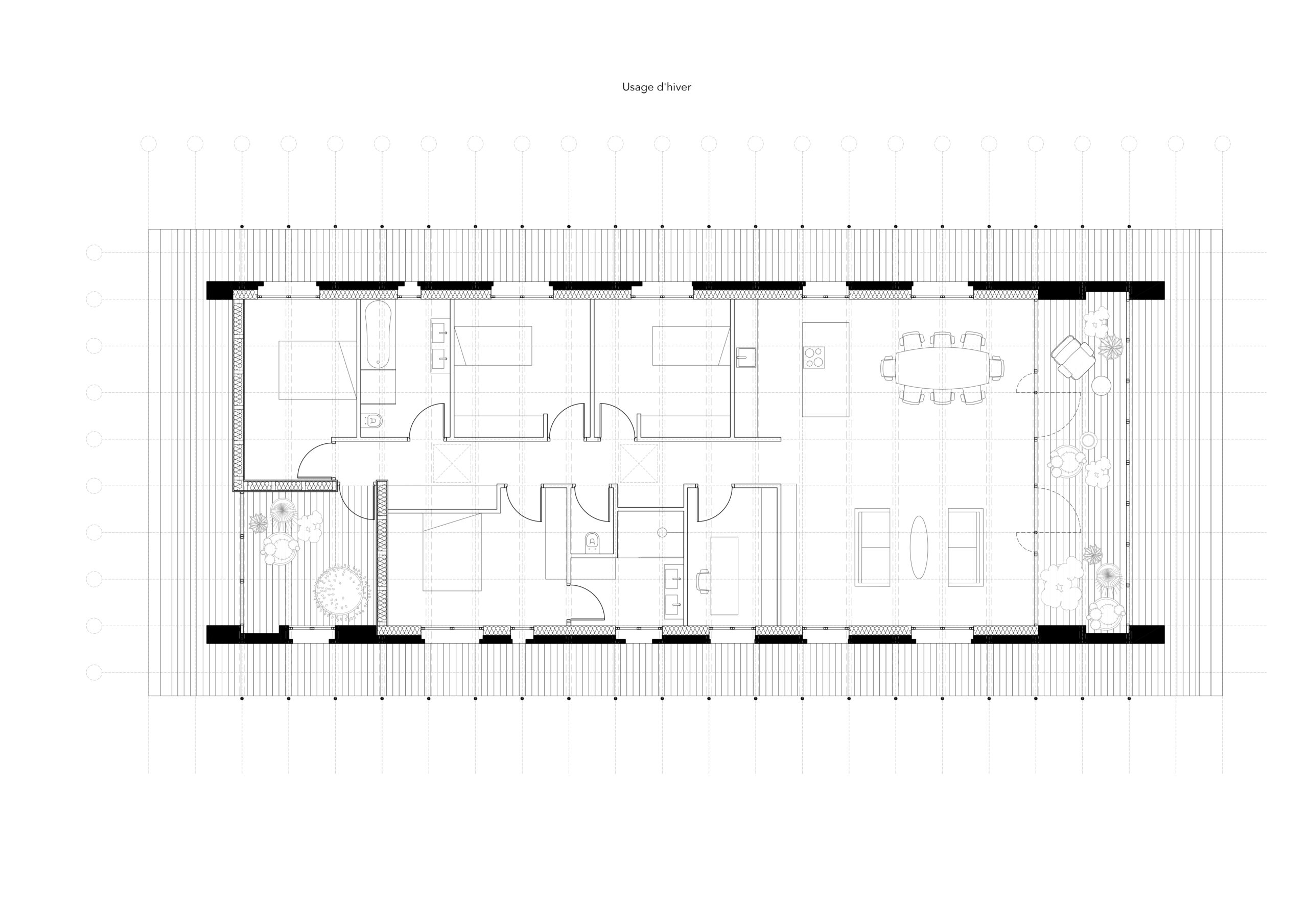
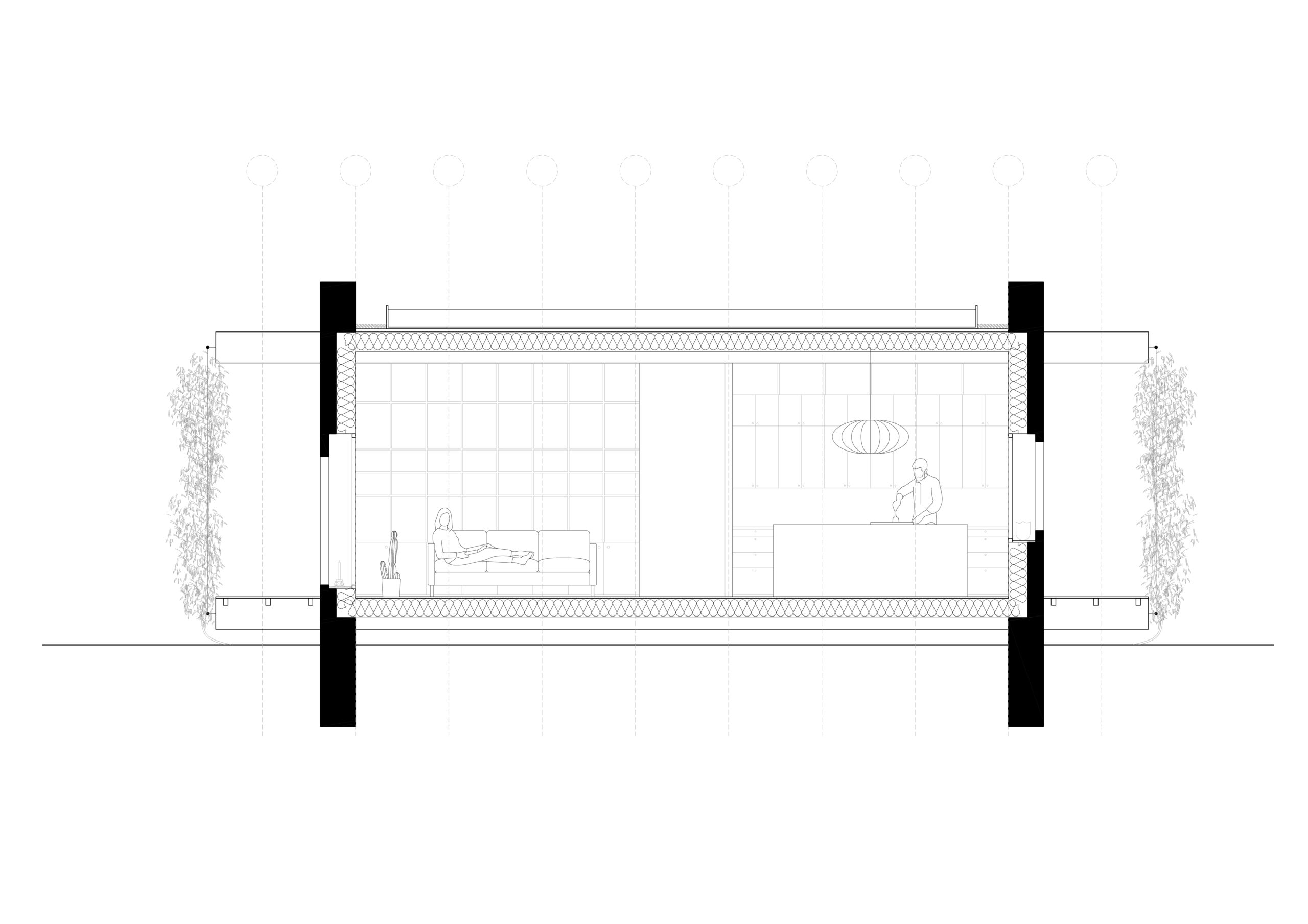
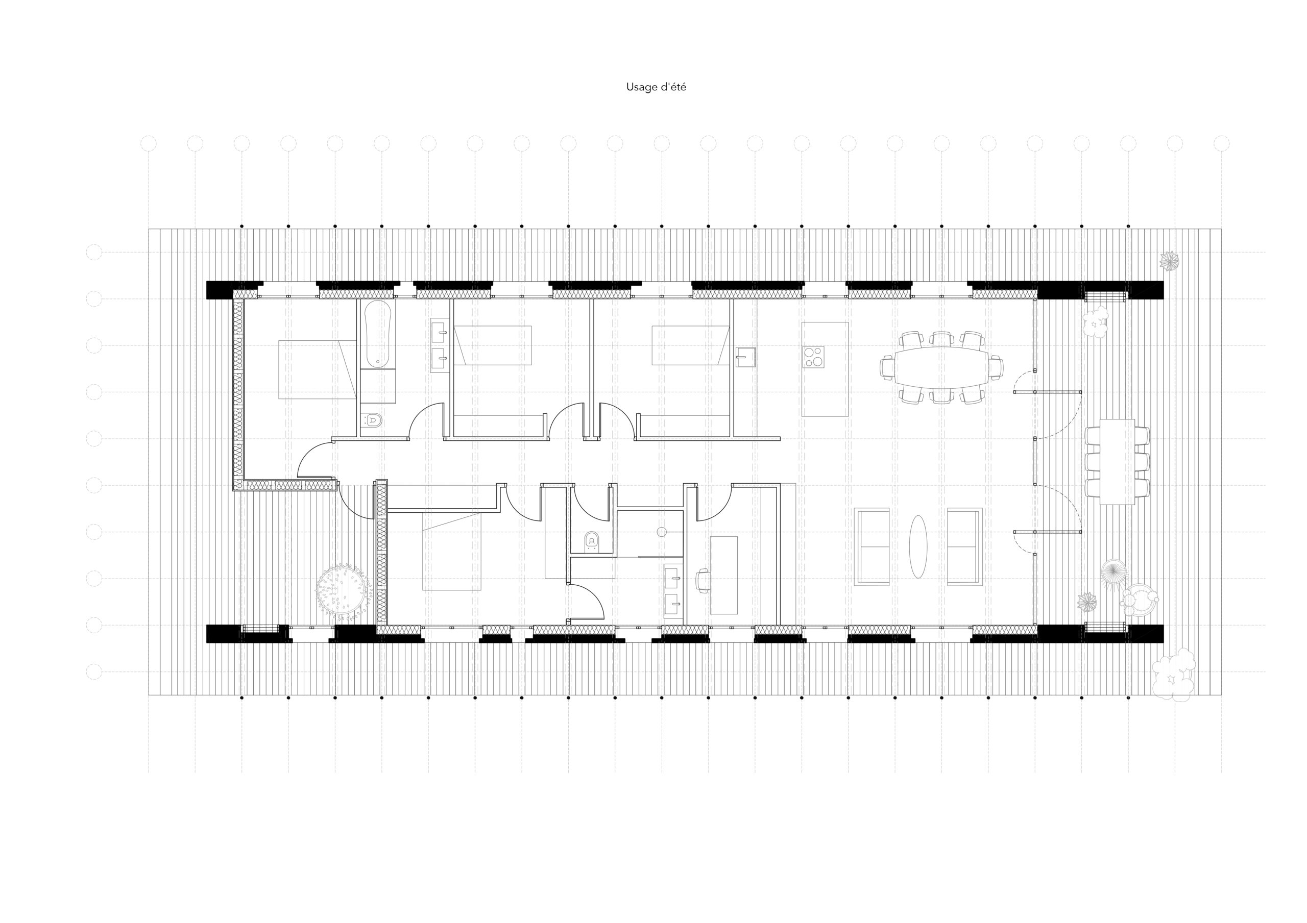
Sur un terrain humide classé en zone inondable, le principe constructif répond par une simplicité robuste, enracinée dans le sol. Deux murs porteurs en béton de terre, enduits à la chaux selon un principe inspiré du torchis, assurent l’assise du projet. Ancrés profondément, ils soutiennent un plancher bois et une charpente rigoureusement symétrique.
Cette structure rationnelle génère un volume rectangulaire surélevé, pensé comme une boîte thermique parfaitement étanche à l’air, intégralement isolée par l’intérieur pour préserver l’inertie des murs en terre.

Le rapport au climat est traité avec subtilité.En été, la maison est protégée par une double strate végétale: une treille de plantes grimpantes courant sur des câbles inox verticaux le long des deux façades longitudinales, et, en toile de fond, la canopée du bois existant au sud du terrain.
À cela s’ajoute un jardin d’hiver (une extension légère en façade) qui referme le volume de la terrasse et de l’entrée par une cloison vitrée et une couverture translucide. Cette pièce tampon agit comme une serre solaire passive : elle abrite la terrasse, filtre la lumière naturelle et contribue à réchauffer le cœur de la maison en période froide.

La rigueur du plan est contrebalancée par un jeu sensible en façade. Les ouvertures, toutes différentes, ponctuent la longueur du bâti en empruntant à l’univers biomorphique de Jean Arp. Chaque percée cadre un fragment du paysage, transforme la paroi en tableau habité, et offre, à l’intérieur, des allèges profondes sculptées par l’épaisseur du mur– autant de niches qui deviennent assises, alcôves, postes d’observation.

Lieu

Eure-et-Loire

Type

Residentiel

Date

2021