Close
Type at least 1 character to search
Back to top

Maison Spirale

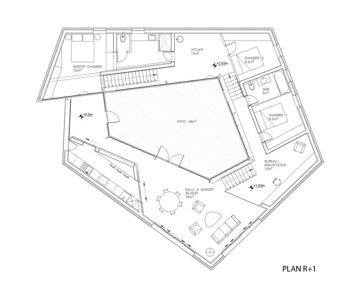
Au cœur d’un lotissement standardisé, la Maison Spirale s’affranchit des codes pour inventer sa propre géographie. Opaque vers l’extérieur et entièrement vitrée sur son patio central, elle compose un refuge lumineux, protégé du voisinage et ouvert sur son paysage intérieur. Le vide devient cœur, scène, respiration.

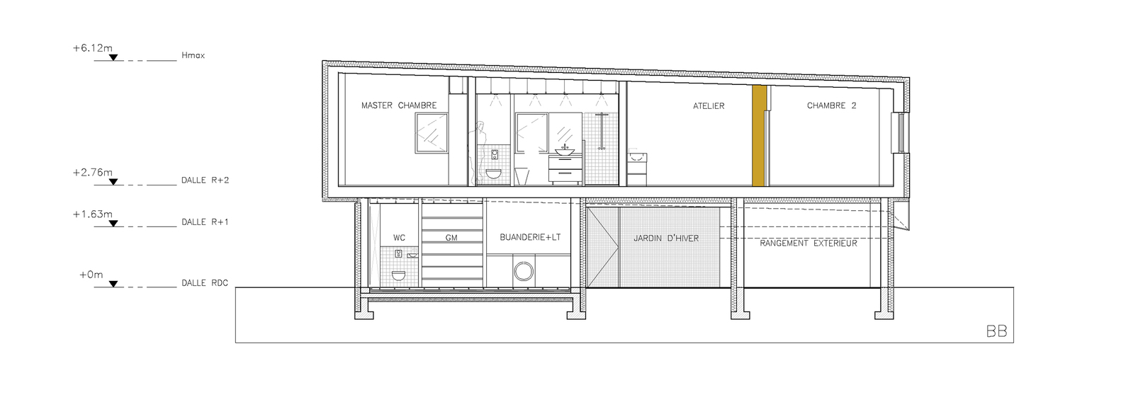
Autour du patio, l’espace se déploie en trois demi–niveaux qui s’enroulent en continu. Cette topographie douce génère des circulations fluides, des variations de lumière et des cadrages renouvelés. Trois volumes colorés (jaune, orange, rouge) abritent les chambres et salles d’eau : des présences sculpturales qui structurent sans figer.

En contrepoint, les façades extérieures demeurent closes et silencieuses. Toute la vie s’organise autour du vide central, comme une spirale qui capte la lumière et redistribue l’intimité.

La Maison Spirale affirme une position : redéfinir l’habiter non par l’étalement, mais par l’épaisseur intérieure, la lumière maîtrisée et la précision des usages.

Lieu

Normandie

Type

Residentiel

Date

2015

Collaboration

NDA

Photographe

Raphaël Bourelly